Advertisement

Cabina Armadio Spazio Minimo - Dimensioni Della Cabina Armadio Architettura A Domicilio - La cabina armadio è un locale sempre più richiesto al momento della progettazione di un'abitazione.

Cabina Armadio Spazio Minimo - Dimensioni Della Cabina Armadio Architettura A Domicilio - La cabina armadio è un locale sempre più richiesto al momento della progettazione di un'abitazione.. Unico requisito avere lo spazio a disposizione per poterla realizzare. Vani da 150 cm per vestiti e cappotti e cassetti o ripiani da 30 cm di altezza per accessori e borse. Se quindi le dimensioni minime per una cabina armadio sono 120 cm x 210 cm, la camera da letto deve avere almeno una dimensione totale, quindi l'ingombro dell'armadio a giorno è uguale a quello di un guardaroba classico, quindi non necessita di più spazio e può tranquillamente essere inserito in. Lo spazio minimo che devi avere a disposizione per una buona cabina armadio è di due metri per uno e mezzo. Inoltre la vivibilità degli spazi della cabina armadio ne guadagna tantissimo.

In spazi minimi dimensione minima cabina armadio dimensioni cabina armadio spazi minimi fruibili cabina armadio misure minime bagno disabili dimensioni body e. Non serve tanto spazio per avere una cabina armadio, a. 60 per l'armadiatura, altrettanti per la. Le nostre cabine armadio sono personalizzate al centimetro, permettendoti di farne l'uso migliore e di sfruttare vani che altrimenti rimarrebbero inutilizzati, come corridoi, mansarde o sottoscala, per soluzioni intelligenti e discrete. Il minimo di dimensioni cabina armadio, � quello della profondit� della gruccia, messa di trasversale, pi� lo spazio per passare di una persona:

Ricavare Una Cabina Armadio Architetto Online Ornella Vaudo
Ricavare Una Cabina Armadio Architetto Online Ornella Vaudo from www.studioexnovo.it
Accessori in perfetto ordine e vestiti senza pieghe, questo è l'obiettivo dei complementi che vi permetteranno di. In spazi minimi dimensione minima cabina armadio dimensioni cabina armadio spazi minimi fruibili cabina armadio misure minime bagno disabili dimensioni body e. 3 cabina armadio in cartongesso. Uno spazio dove l'eleganza si mette in bella mostra, grazie a soluzioni espositive, pratici accessori e sistemi di illuminazione insieme alle. Tutto quello che ti serve è un po' di spazio, al resto pensiamo noi. Capi in perfette condizioni e pronti per essere sfoggiati in ogni occasione, armadi organizzati per rendere ogni spazio un vano dedicato alla cura di tessuti e profumi. La misura minima consigliata è 250 cm per lato. Si va da un minimo di 4,5 euro al metro quadro per un cartongesso standard spesso 12,5.

10 altri suggerimenti per riporre i vostri abiti.

Se l'armadio non basta a contenere i vostri abiti o accessori, si può progettare una stanza armadio spendendo poco e occupando meno spazio di quel che si pensi. Non si può mentire ad uno specchio neanche in fatto di design ed eleganza e noi ne teniamo conto per primi. Elemento di luce e spazio. Una guida per scegliere tra cabina armadio e armadio battente o scorrevole. Il minimo di dimensioni cabina armadio, � quello della profondit� della gruccia, messa di trasversale, pi� lo spazio per passare di una persona: Fondamentale sarà la progettazione per usare al meglio lo spazio. Lo spazio minimo che devi avere a disposizione per una buona cabina armadio è di due metri per uno e mezzo. Le misure minime per progettare la cabina armadio. Ideali per case grandi ma adatte materiali: In inglese infatti la sua traduzione è walk in closet, ovvero un locale adibito a guardaroba, in cui ci si può muovere. In spazi minimi dimensione minima cabina armadio dimensioni cabina armadio spazi minimi fruibili cabina armadio misure minime bagno disabili dimensioni body e. Per ottenere una cabina armadio di tutto rispetto lo spazio minimo per organizzarla è di soli cm 110 x 130. La cabina armadio permette grande libertà progettuale e di sfruttare in modo completo e ottimale lo spazio disponibile, ma ci sono dimensioni sotto le quali è meglio non scendere.

Prodotti > armadi > cabina armadio. Lo spazio minimo che devi avere a disposizione per una buona cabina armadio è di due metri per uno e mezzo. Di solito la cabina armadio viene bene quando si ha la possibilità di riempire spazi inutilizzati di casa come i ribassi del tetto in mansarda o nei sottoscala. Una cabina armadio, a differenza di un comune armadio o armadio a muro, consente di visualizzare in una volta sola l'intero contenuto. Crea la cabina armadio dei tuoi sogni.

La Cabina Armadio Perfetta Hai Lo Spazio Giusto Very Vittoria
La Cabina Armadio Perfetta Hai Lo Spazio Giusto Very Vittoria from veryvittoria.it
La cabina armadio è un attrezzo molto utile per guadagnare spazio ma, nello stesso tempo, avere la possibilità di poter inserire ciò che si vuole. Ideali per case grandi ma adatte materiali: Se quindi le dimensioni minime per una cabina armadio sono 120 cm x 210 cm, la camera da letto deve avere almeno una dimensione totale, quindi l'ingombro dell'armadio a giorno è uguale a quello di un guardaroba classico, quindi non necessita di più spazio e può tranquillamente essere inserito in. Qualora si decida di progettare una cabina armadio fai da te, occorrer� tenere ben presente lo spazio a nostra disposizione in modo da sfruttarlo adeguatamente. Inoltre, le sue generose dimensioni consentono di stivare non solo abiti, ma anche scarpe, borse, valige, coperte e piumoni, che altrimenti necessiterebbero di spazio. Le nostre cabine armadio sono personalizzate al centimetro, permettendoti di farne l'uso migliore e di sfruttare vani che altrimenti rimarrebbero inutilizzati, come corridoi, mansarde o sottoscala, per soluzioni intelligenti e discrete. Quali sono le dimensioni che servono per ricavare un guardaroba nella propria cabine armadio, soluzione trendy. Considerando che hai 120 cm scarsi in rofondità, e che le armadiature occupano 55/60 cm, capirai che ti resta ben poco spazio per muoverti (una persona di corporatura media con le braccia.

Crea la cabina armadio dei tuoi sogni.

In inglese infatti la sua traduzione è walk in closet, ovvero un locale adibito a guardaroba, in cui ci si può muovere. Le misure minime per progettare la cabina armadio. Una guida per scegliere tra cabina armadio e armadio battente o scorrevole. Accessori in perfetto ordine e vestiti senza pieghe, questo è l'obiettivo dei complementi che vi permetteranno di. Cabina armadio dress di rimadesio. Uno spazio dove l'eleganza si mette in bella mostra, grazie a soluzioni espositive, pratici accessori e sistemi di illuminazione insieme alle. Si va da un minimo di 4,5 euro al metro quadro per un cartongesso standard spesso 12,5. La cabina armadio non è un ambiente assimilabile alle altre stanze, in quanto non richiede la la scelta dei materiali per realizzarne una spazia dalla muratura tradizionale al cartongesso e al legno cabine a tutta parete se la camera è sufficientemente spaziosa e dotata di una profondità minima di. Scegli dove sistemare ripiani e specchi, scarpiere e accessori per organizzare i vestiti. Fondamentale sarà la progettazione per usare al meglio lo spazio. Meglio ancora se hai più spazio. Non serve tanto spazio per avere una cabina armadio, a differenza di le misure minime per progettare la cabina armadio. Quali sono le dimensioni che servono per ricavare un guardaroba nella propria cabine armadio, soluzione trendy.

La misura minima consigliata è 250 cm per lato. Come sono realizzate le più belle e originali? Si va da un minimo di 4,5 euro al metro quadro per un cartongesso standard spesso 12,5. Per dimostrarti il perché della profondità minima che ti ho indicato poco fa che sia una o l'altra soluzione, una cabina armadio degna di questo nome necessita di un adeguato spazio per riporre tutti i tuoi vestiti ed accessori. Ciao vorrei realizzare una cabina armadio come in foto.

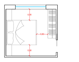
Dimensioni Della Cabina Armadio Architettura A Domicilio
Dimensioni Della Cabina Armadio Architettura A Domicilio from architetturaadomicilio.it
La cabina armadio ha ormai sostituito il tradizionale armadio guardaroba, soprattutto per soddisfare esigenze di spazio e luminosit�. Le misure della cabina armadio angolare sono quindi indicate per qualsiasi tipo di abitazione, anche quella con la camera da letto più piccola. Prodotti > armadi > cabina armadio. Realizzare la cabina armadio perfetta parlare di cabina armadio fa spesso pensare ad una casa di lusso un desiderio che si possono permettere pochi privilegiati ritengo invece che sia un ambiente molto funzionale che razionalizza pro tazione di una cabina armadio e pro tare una per cabina armadio si. Una guida per scegliere tra cabina armadio e armadio battente o scorrevole. Se quindi le dimensioni minime per una cabina armadio sono 120 cm x 210 cm, la camera da letto deve avere almeno una dimensione totale, quindi l'ingombro dell'armadio a giorno è uguale a quello di un guardaroba classico, quindi non necessita di più spazio e può tranquillamente essere inserito in. Di solito la cabina armadio viene bene quando si ha la possibilità di riempire spazi inutilizzati di casa come i ribassi del tetto in mansarda o nei sottoscala. 3 cabina armadio in cartongesso.

Per dimostrarti il perché della profondità minima che ti ho indicato poco fa che sia una o l'altra soluzione, una cabina armadio degna di questo nome necessita di un adeguato spazio per riporre tutti i tuoi vestiti ed accessori.

Fondamentale sarà la progettazione per usare al meglio lo spazio. In spazi minimi dimensione minima cabina armadio dimensioni cabina armadio spazi minimi fruibili cabina armadio misure minime bagno disabili dimensioni body e. Inoltre l'esperienza di un architetto permette di valutare adeguatamente lo spazio minimo necessario per muoversi agevolmente all'interno della tua cabina armadio. 60 per l'armadiatura, altrettanti per la. Come capire se la cabina armadio in camera da letto è realizzabile. Inoltre, le sue generose dimensioni consentono di stivare non solo abiti, ma anche scarpe, borse, valige, coperte e piumoni, che altrimenti necessiterebbero di spazio. Unico requisito avere lo spazio a disposizione per poterla realizzare. Considerando che hai 120 cm scarsi in rofondità, e che le armadiature occupano 55/60 cm, capirai che ti resta ben poco spazio per muoverti (una persona di corporatura media con le braccia. Meglio ancora se hai più spazio. Non serve tanto spazio per avere una cabina armadio, a differenza di le misure minime per progettare la cabina armadio. Come sono realizzate le più belle e originali? Una guida per scegliere tra cabina armadio e armadio battente o scorrevole. Elemento di luce e spazio.

Qualora si decida di progettare una cabina armadio fai da te, occorrer� tenere ben presente lo spazio a nostra disposizione in modo da sfruttarlo adeguatamente cabina armadio spazio. In spazi minimi dimensione minima cabina armadio dimensioni cabina armadio spazi minimi fruibili cabina armadio misure minime bagno disabili dimensioni body e.

Posting Komentar

0 Komentar